Wohnung Zollbrück

Immobilien | Rendite | Vermietung

Wohnung Zollbrück

Auftrag
Jahr
Ort

Projektstand

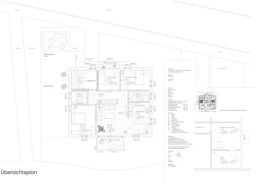
Kauf und Vermietung 4,5 Zimmer Wohnung, Zollbrück
2022
Zollbrück

Immobilienkauf (Vermietet)

Auftrag: Kauf und Vermietung 4,5 Zimmer Wohnung, Zollbrück
Jahr: 2022
Ort: Zollbrück

Projektstand: Immobilienkauf (Vermietet)

Für eine Privatperson wurde die Verwaltung einer Wohnung übernommen – mit dem Ziel, die Unterlagen zu ordnen und die Immobilie rasch neu zu vermieten.

Details:

☑️ Übernahme der Verwaltung einer Wohnung in Zollbrück (2022)

☑️ Aufarbeitung und Strukturierung aller Unterlagen

☑️ Aktualisierung der Pläne und Dokumentation

☑️ Erfolgreiche Neuvermietung in kurzer Zeit

Archetekton

Unsere Leidenschaft zur Architektur hat uns zusammengebracht und fordert uns jeden Tag mit neuen Aufgaben. Mit Mut und Engagement arbeiten wir an der Realisation unserer Projekt und nutzen dabei den direkten Dialog zwischen Bauherren und uns als Planern. Dabei wird nichts dem Zufall überlassen und jedes Detail bekommt seine ganz eigene Wichtigkeit in den Projektphasen. Aspekte wie Nachhaltigkeit, Materialzyklen und Generationenplanung Gehöhren in jeden Entwicklungsprozess eingebettet, um einen planerischen Rahmen zu setzen. Darin suchen wir nach dem optimalen Projekt und können somit für jedes Bedürfnis eine passende Lösung bieten.


T. +41 77 419 42 08E. info@archetekton.ch