Energietech Sanierung, DEFH-Hälfte, Bremgarten

Architektur | Sanierung | Energietechnische Sanierung

Energietech Sanierung, DEFH-Hälfte, Bremgarten

Auftrag
Jahr
Ort

Projektstand

Energietechnische Sanierung, DEFH-Hälfte, Bremgarten
2024/25
Bremgarten

SIA Phas 0-5 (Abgeschlossen)

Auftrag: Energietechnische Sanierung, DEFH-Hälfte, Bremgarten
Jahr: 2024/25
Ort: Bremgarten

Projektstand: SIA Phas 0-5 (Abgeschlossen)

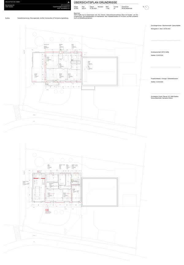
Auf Grund von einem Wasserschaden und überalteter Haustechnik haben sich die Eigentümer entschieden das Gebäude zu ertüchtigen. Es handelt sich um eine Doppeleinfamilienhaus-Hälfte in Bremgarten bei Bern. Das Gebäude ist am Hang gebaut und verfügt über ein Sockelgeschoss, ein Erdgeschoss und ein unbeheizten Erstich. Der Aussenraum ist auf verschiedenen Ebenen rund um das Haus angesiedelt und bietet viel Potential. Die Gebäudehülle wurde bis auf die Fenster und den Boden im Sockelgeschoss komplett erneuert und isoliert. Die gesamte Haustechnik wurde ersetzt und erneuert, so auch die gesamten Elektroleitungen. Die bestehende Öl-Heizung und der Öl-Tank wurden entfernt und durch eine Luft-Wasser-Wärmepume ersetzt. Das Gebäude erhielt eine PV-Aufdachanlage und ein neues Gartensitzplatz Vordach.

Details:

☑️ Energietechnische Gebäudehüllensanierung

☑️ Energieoptimierung

☑️ Fördergelder

☑️ GEAK

☑️ Aussenraumgestaltung

☑️ Renditeoptimierung

☑️ Architektur

☑️ Doppeleinfamilienhaus-Hälfte

Archetekton

Unsere Leidenschaft zur Architektur hat uns zusammengebracht und fordert uns jeden Tag mit neuen Aufgaben. Mit Mut und Engagement arbeiten wir an der Realisation unserer Projekt und nutzen dabei den direkten Dialog zwischen Bauherren und uns als Planern. Dabei wird nichts dem Zufall überlassen und jedes Detail bekommt seine ganz eigene Wichtigkeit in den Projektphasen. Aspekte wie Nachhaltigkeit, Materialzyklen und Generationenplanung Gehöhren in jeden Entwicklungsprozess eingebettet, um einen planerischen Rahmen zu setzen. Darin suchen wir nach dem optimalen Projekt und können somit für jedes Bedürfnis eine passende Lösung bieten.


T. +41 77 419 42 08E. info@archetekton.ch