Bauernhaus, Wohnung OG und DG, Vinelz

Architektur | Wohnen | Bauernhaus

Bauernhaus, Wohnung OG und DG, Vinelz

Auftrag
Jahr
Ort

Projektstand

Studie Ausbau
2021
Vinelz

SIA Phase 0-1 (Abgeschlossen)

Auftrag: Studie Ausbau
Jahr: 2021
Ort: Vinelz

Projektstand: SIA Phase 0-1 (Abgeschlossen)

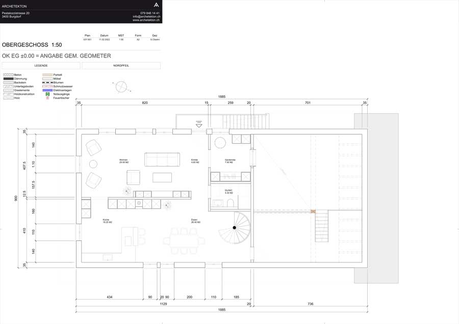
Machbarkeitsstudie für den Ausbau eines bestehenden Dachgeschosses zu einer modernen Wohneinheit mit zusätzlichem Büro und Schlafbereich.

Details:

☑️ Prüfung der Ausbaumöglichkeiten im Dachgeschoss

☑️ Erweiterung durch zwei Lukarnen

☑️ Offenes Büro im Obergeschoss

☑️ Integrierte Nasszellen-Oase

☑️ Schlafzimmer mit Cheminée

☑️ Verbindung zum Tenn und zur Garage

Archetekton

Unsere Leidenschaft zur Architektur hat uns zusammengebracht und fordert uns jeden Tag mit neuen Aufgaben. Mit Mut und Engagement arbeiten wir an der Realisation unserer Projekt und nutzen dabei den direkten Dialog zwischen Bauherren und uns als Planern. Dabei wird nichts dem Zufall überlassen und jedes Detail bekommt seine ganz eigene Wichtigkeit in den Projektphasen. Aspekte wie Nachhaltigkeit, Materialzyklen und Generationenplanung Gehöhren in jeden Entwicklungsprozess eingebettet, um einen planerischen Rahmen zu setzen. Darin suchen wir nach dem optimalen Projekt und können somit für jedes Bedürfnis eine passende Lösung bieten.


T. +41 77 419 42 08E. info@archetekton.ch